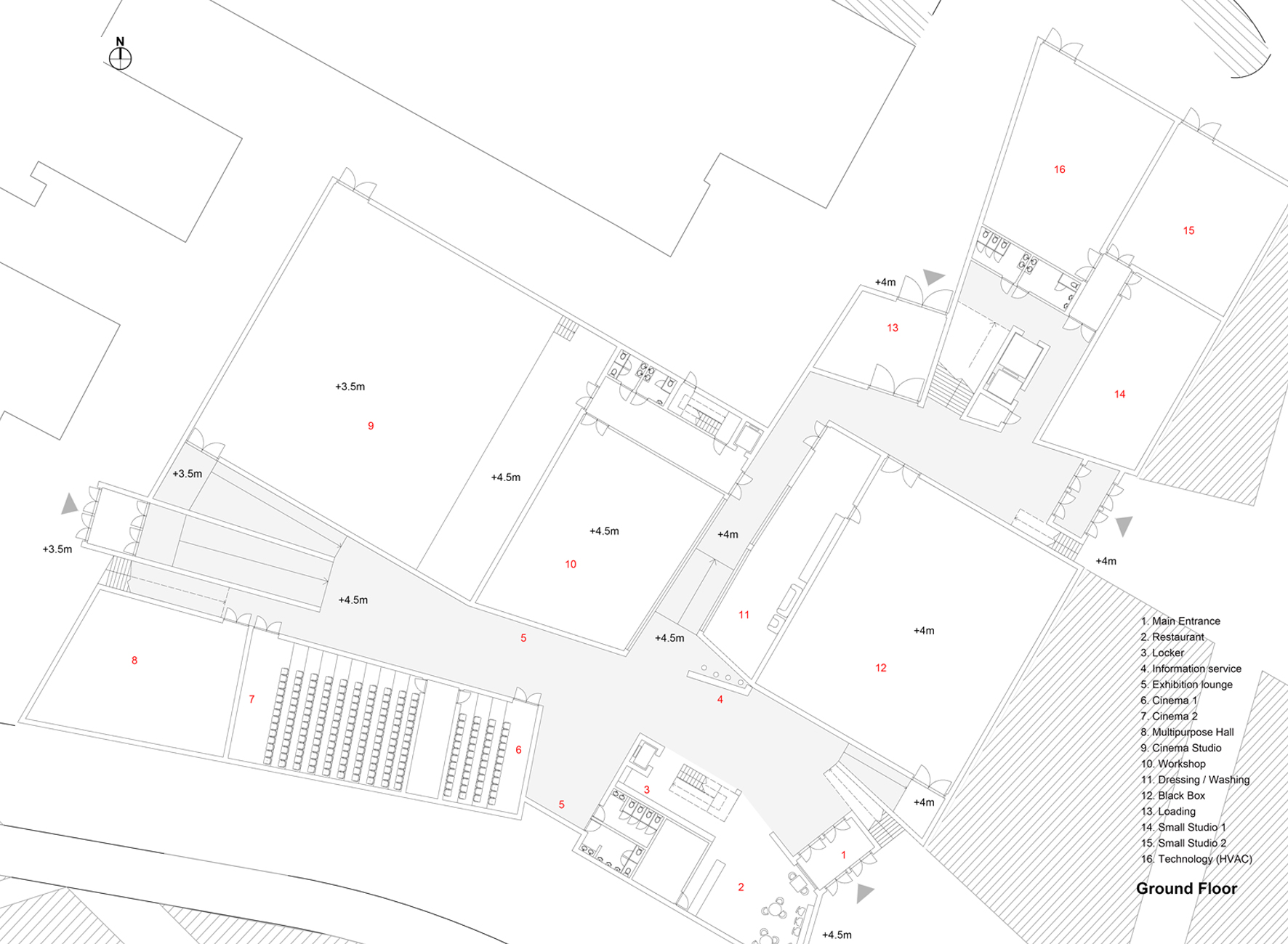
Between the Forest, the grasslands and the buildings, in Otaniemi, the Future Media Center project is located. The concept development relies on five blocks breaking from a whole unit. Each block has a different height to create the forest atmosphere. Workshops along the walkway will use transparent materials, so the interior activity can be noticed from the outside of each block. On the contrary, the outer façade of the building is solid, demonstrating its block nature from afar.
The walkway between the blocks connects the different functional blocks and the wider walkway could be used as the exhibition space, while part of the roof is opened to connect the people flow and be used as an art street. The inclined featured walls, create an intensive feeling of walking in the walkways, which is similar to walking in the forest.
