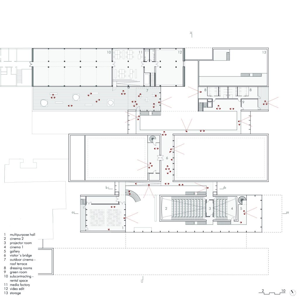
It is expected that the Future Media Center is a hybrid building, which works like a high-performance machine in terms of film producing / acting / teaching. At the same time, it should get the new Centre of the Otaniemi campus. The main task was to combine a highly sensitive Media Center with a public building without disturbing the flow. The building is divided in three main layers, which are connected with bright, natural lighted halls. The concept of dividing is MAKING / ACTING / VIEWING. Because of these three layers, the public spaces and the studio spaces can be completely separate. However, for visitors it is possible to walk through the whole building over bridges in the second floor. This path on the second floor allows the visitors deep insights in movie- and theater producing. The shape of the building is oriented towards the surrounding buildings. The clear lines of the project speaks the language of Aalto’s design vocabulary and respects the Master plan of Otaniemi. The northern part of the building is connected with the existing, protected Aalto building. To create a compact Media Center, which solves all the internal logistical tasks and offers high quality public open space, it is necessary to reorganise the existing Nano building. For this purpose, the Nano building gets a new complex on the south part of the site and the Future Media Center takes over an existing complex of the protected Aalto building.















