stoa
Home
Blog
Contact
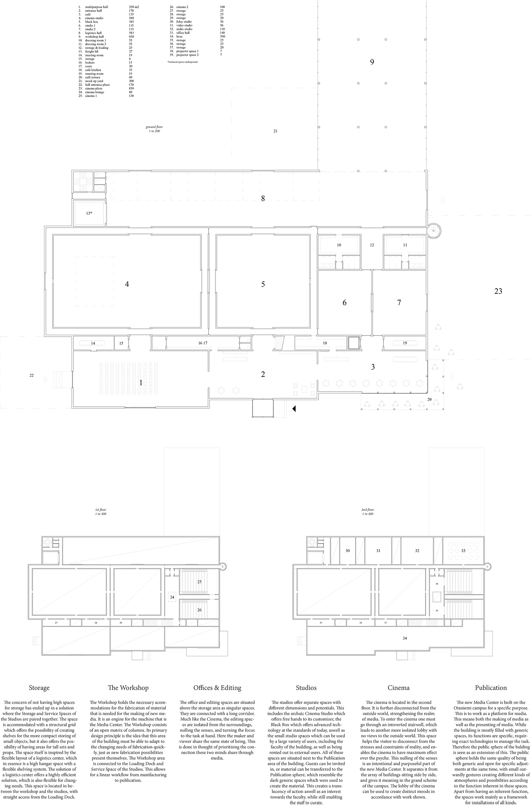
Media Center Otaniemi
Matias Kotilainen. Future Media Center. Autumn 2016
Share
Leave a comment
Cancel Reply
Your Comment
*
Name
*
Email
*
Website
Previous Project
Next Project