stoa
Home
Blog
Contact
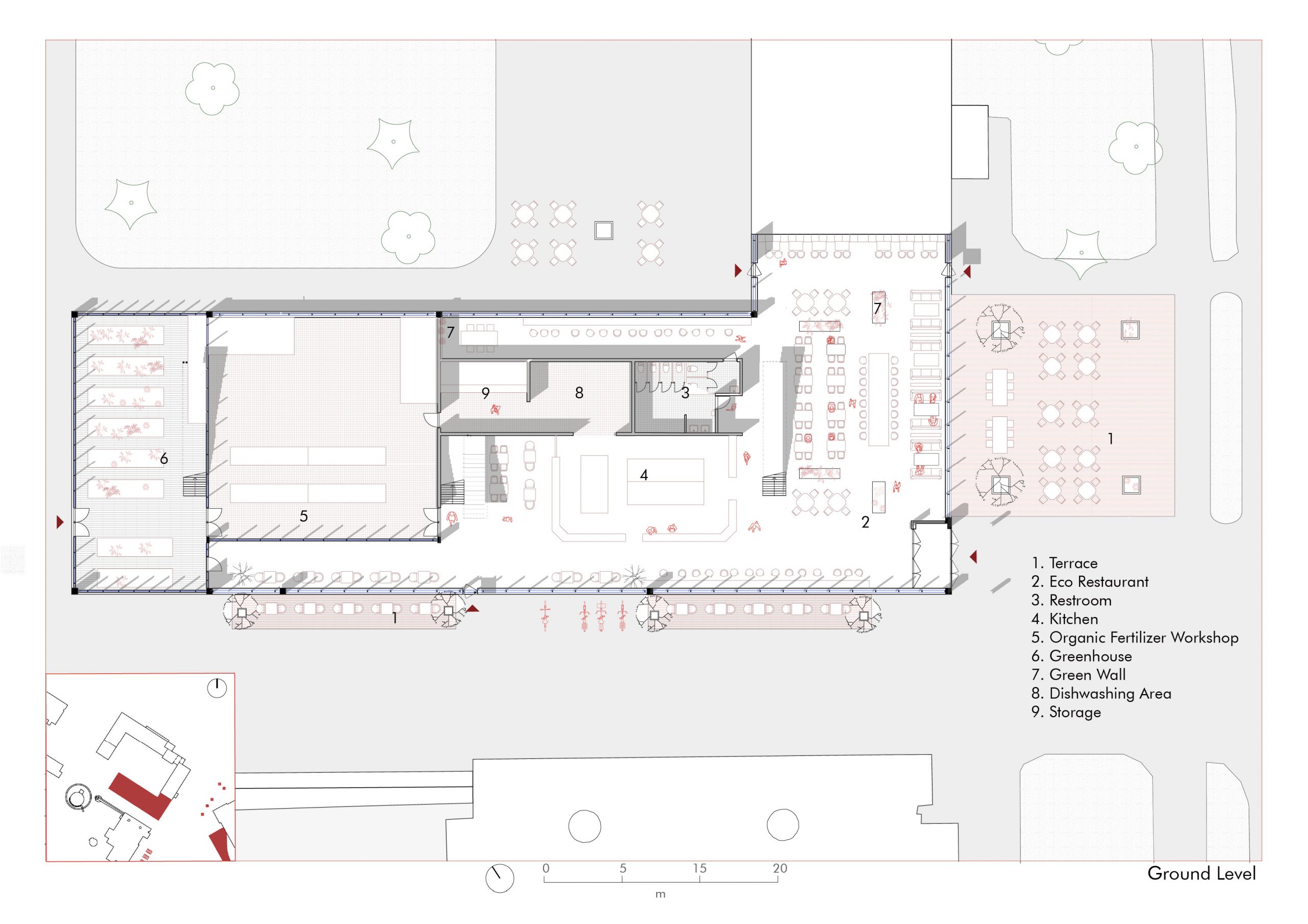
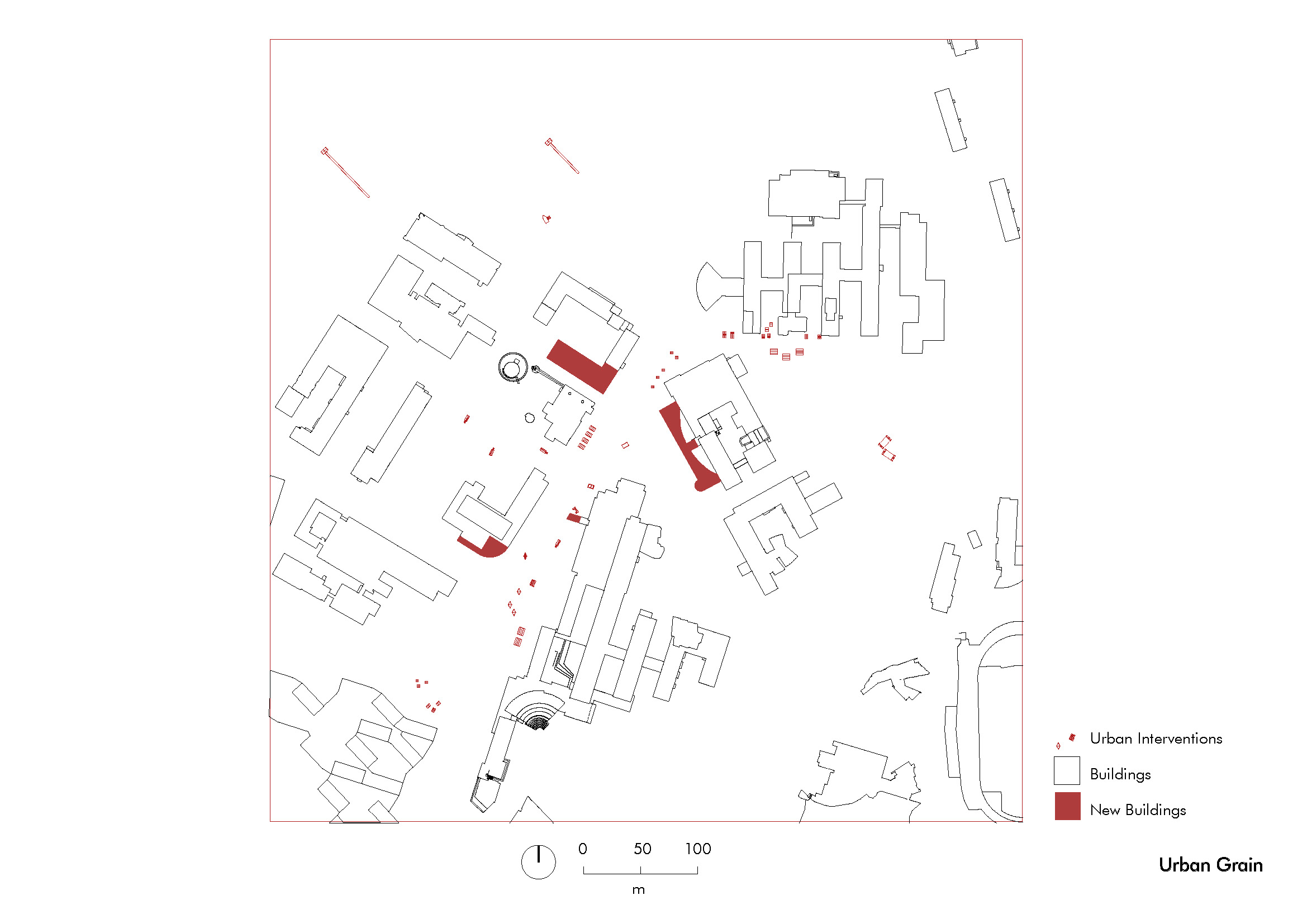
Make It A Destination
Shenyu Sun, Autumn 2020
Share
Leave a comment
Cancel Reply
Your Comment
*
Name
*
Email
*
Website
Previous Project
Next Project