stoa
Home
Blog
Contact
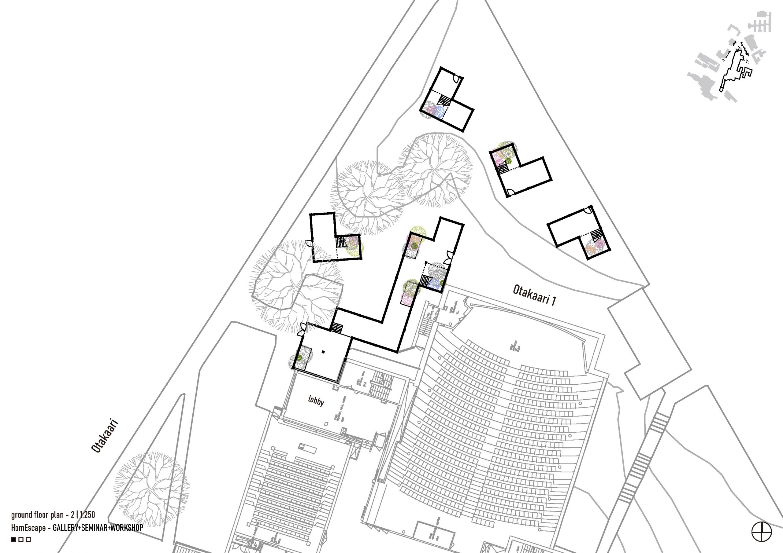
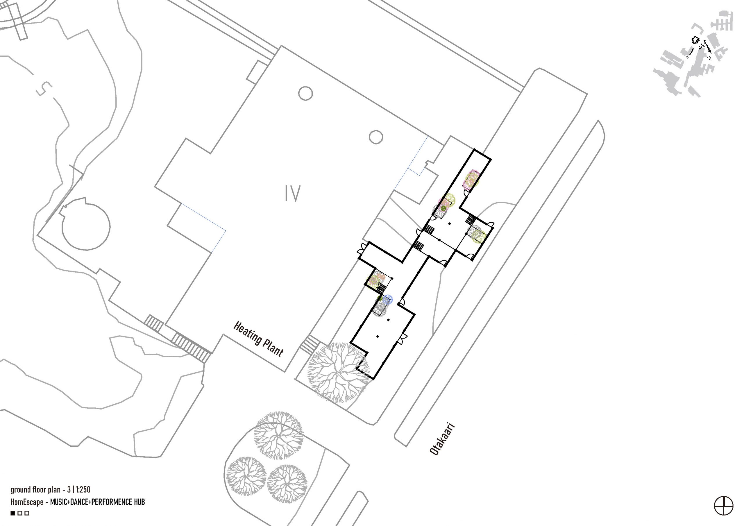
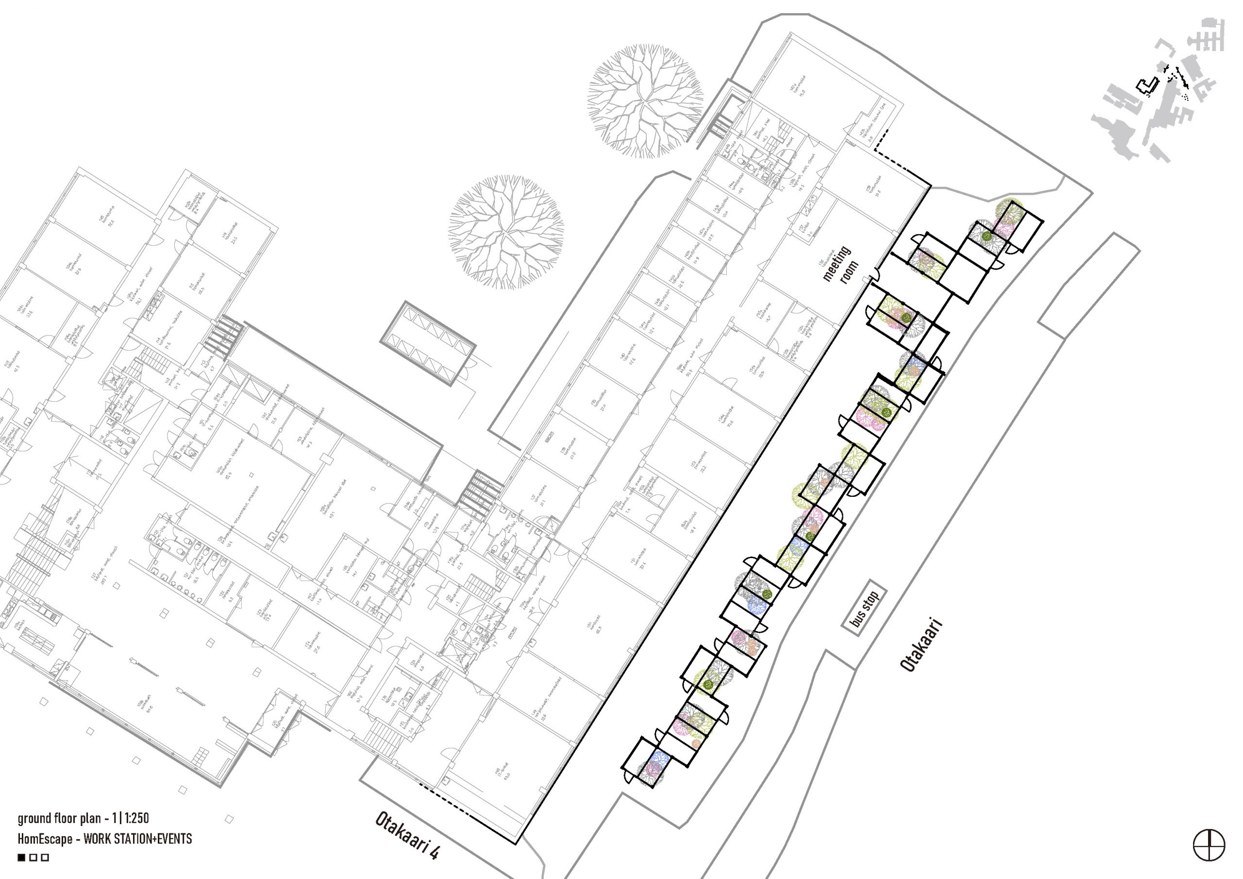
“For anyone who wants to be somewhere else other than home, in the time of pandemic.”
Share
Leave a comment
Cancel Reply
Your Comment
*
Name
*
Email
*
Website
Previous Project
Next Project