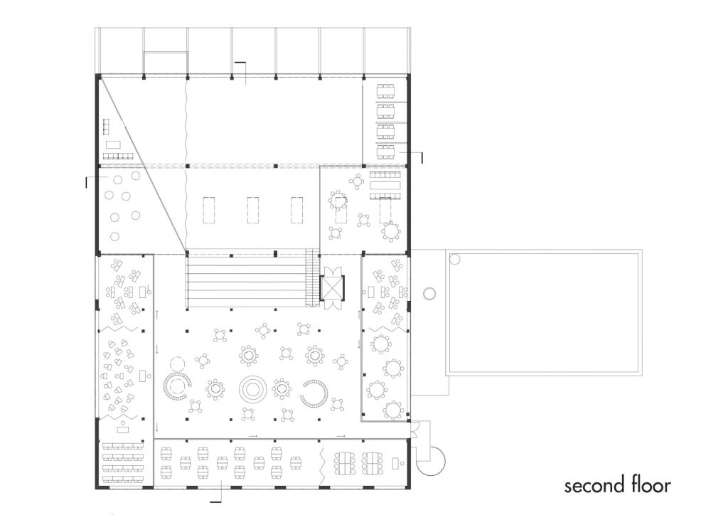
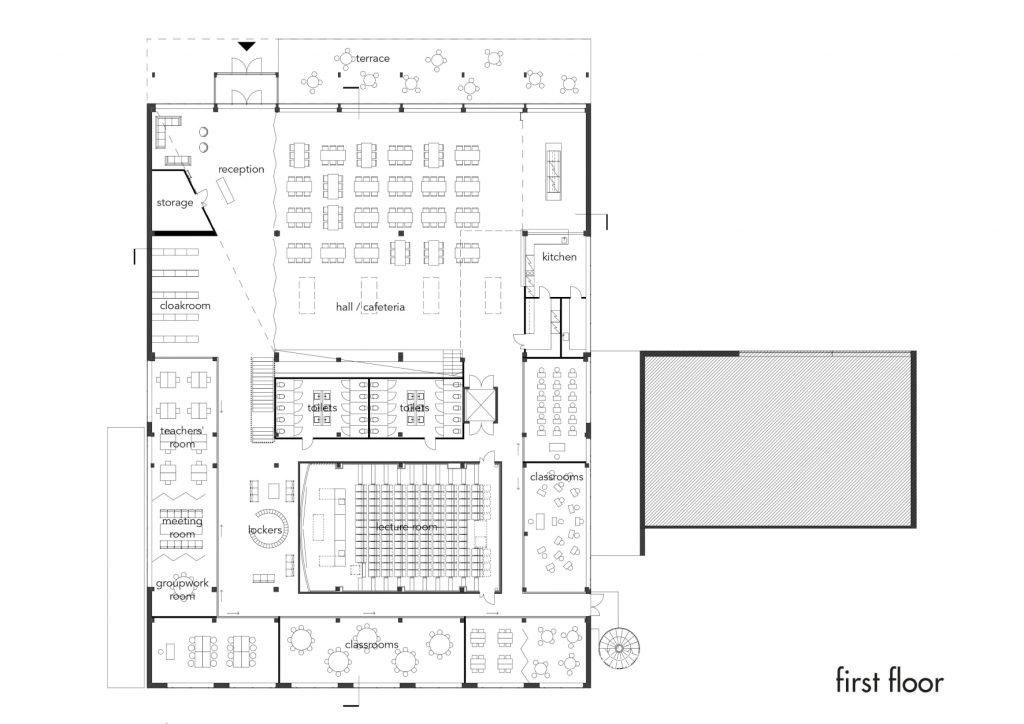
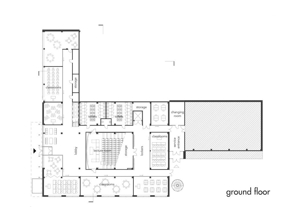
Many schools suffer from indoor air problems and are in desperate need of renovation in the Helsinki metropolitan area. For the duration of the renovation the students and staff have to be relocated to an other building, or in many cases to containers in the courtyard. Housing these people temporarily gives a constant headache to city officials. A possible solution is to appoint a building which would serve as a permanently temporary school, where different schools can be relocated every 2 or 3 years while their own building is undergoing renovation. Aalto University has some underused facilities in the Otaniemi campus area and also a willingness to share its spaces with high schoolers, soon to be university students. This unique opportunity gave us a chance to re-examine what school means to the students and teachers nowadays. We organized workshops with the container school currently located in the campus area to find out about the needs of students and staff and developed the concept for co-school with their help. To encourage future users to take ownership of the space, we created a toolkit of cards to facilitate communication and ideation. We also planned several workshops to enable better cooperation between school and university. The main hub for the school is located in an old wood material science building, which will be renovated for this purpose. It will house flexible spaces for learning in groups and individually as well as a large hall and courtyard to serve as a common area.








